Chen Residence

Taichung City

22ping

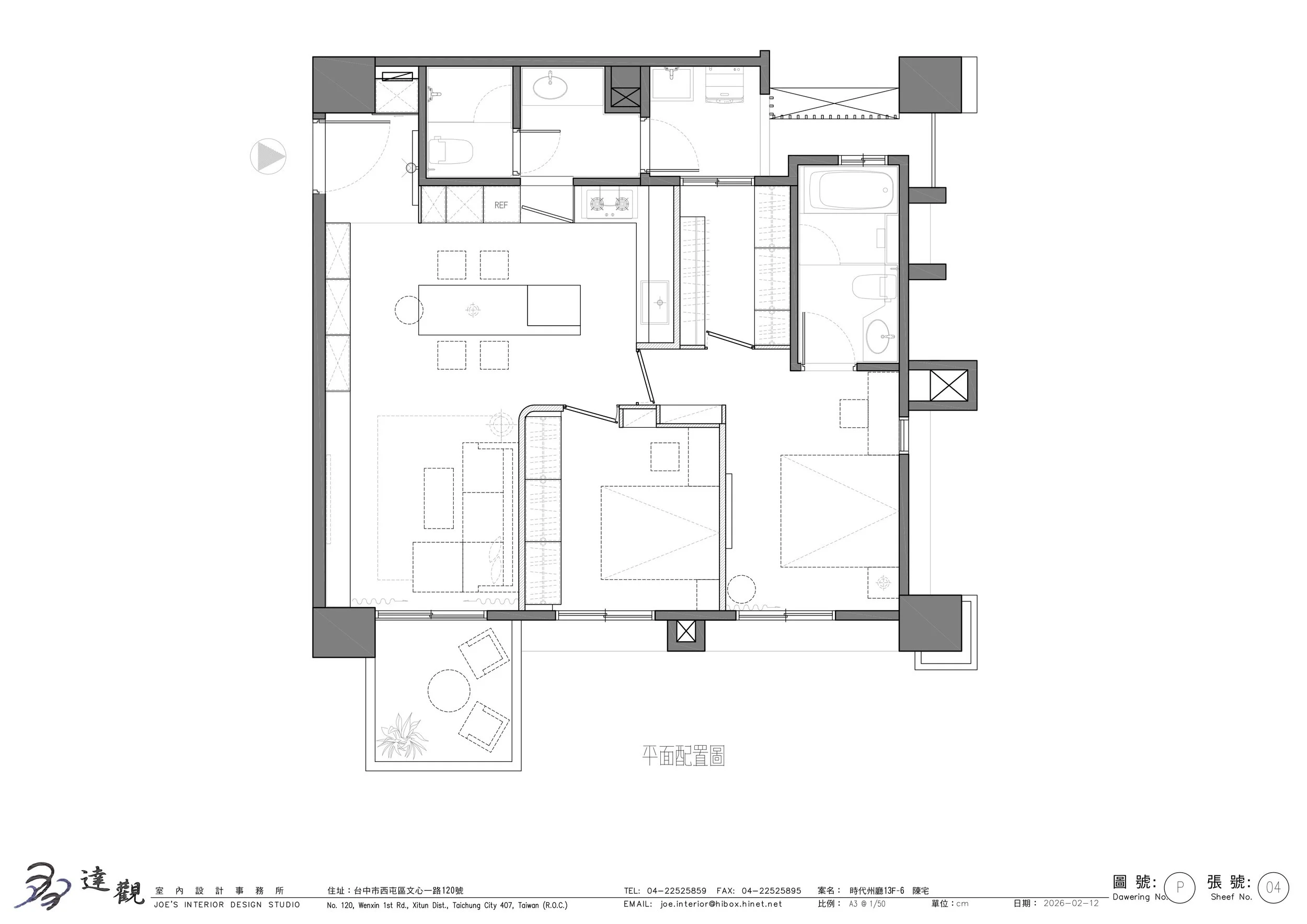
本案將原有三房格局調整為二加一房,以回應屋主習慣於餐桌工作的生活模式。設計上將廚房與餐廳空間擴大,並將額外的空間規劃為主臥室的專屬更衣室,以滿足屋主對機能與舒適的雙重需求。

整體設計以沉穩的深木色與溫潤的灰階為基調,透過多樣化的材質細節堆疊出豐富層次。客廳電視牆採用特殊紋理的礦物塗料,與深色木質櫃體和滑動格柵搭配,創造視覺上的焦點。開放式設計串聯客廳、餐廳與廚房,讓空間更顯開闊。寬大的實木餐桌則成為居家生活的核心,無論是用餐、工作或閒談,都能在這個空間進行。

© 2026 Daguan Inc.