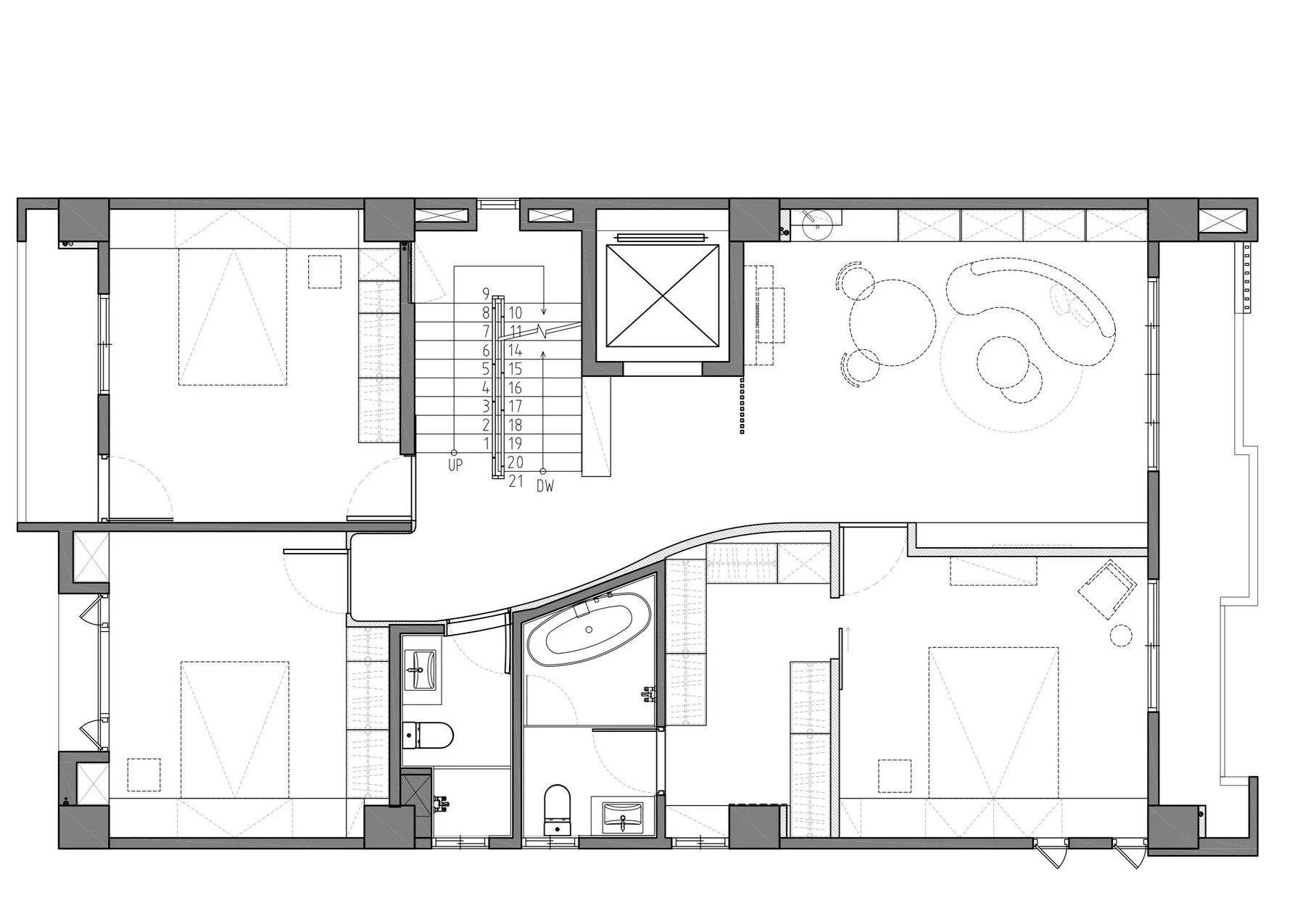
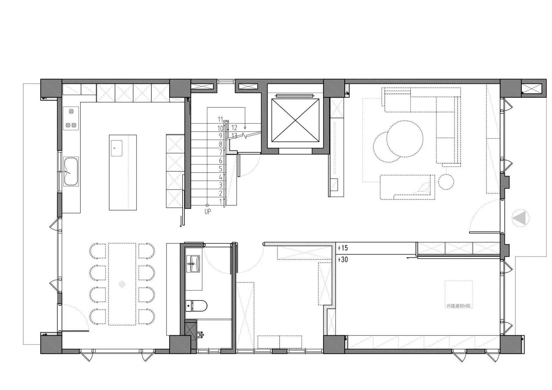
About Project Service Contact HOME Lin Residence Taichung City115ping 透天厝的規劃案,以淺色調為主軸,創造輕盈且無壓的空間感。梯間的圓弧造型牆面,柔化了剛硬的線條,引導視覺動線的流暢。我們善用格柵元素作為空間的過渡與端景,其垂直線條不僅延伸了視覺,更在保有穿透性的同時,巧妙界定出各個機能區域。公共空間多採用開放式櫃體設計,讓居家風格藉由屋主的生活擺飾與收藏,自然地呈現在每個角落。 © 2026 Daguan Inc.